













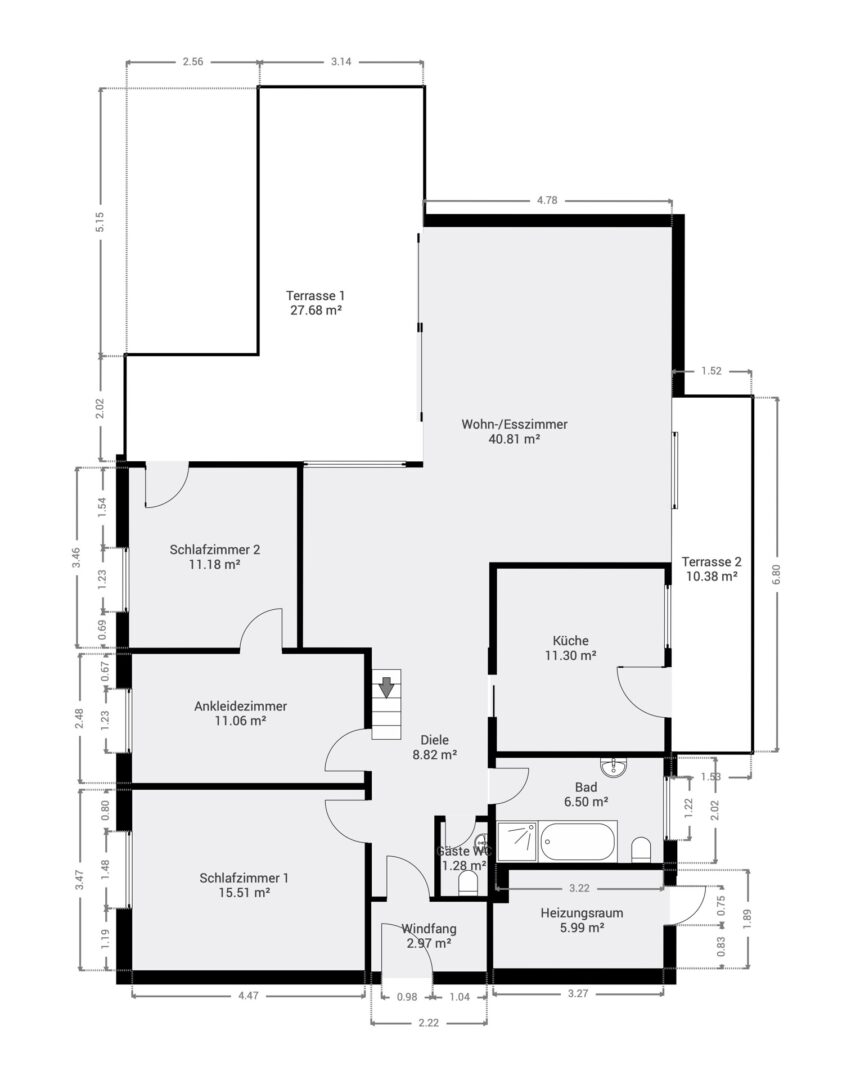
Ein Zuhause für alle, die komfortables Wohnen auf einer Ebene schätzen – und zugleich zusätzliche Fläche für individuelle Ideen suchen: Dieser sehr gepflegte Bungalow (Baujahr 1972) bietet ca. 125 m² Wohnfläche sowie ca. 49 m² wohnlich ausgebaute Nutzfläche im Spitzboden.
Das ca. 727 m² große Grundstück überzeugt mit einem liebevoll angelegten Garten, Teich und separater Saunahütte – ein privater Rückzugsort mit besonderem Erholungswert. Der helle Wohn-/Essbereich öffnet sich zur großzügigen, überdachten Terrasse. Garage und drei Schuppen bieten außergewöhnlich viel Stauraum.
Zudem wurden bereits zentrale Modernisierungen umgesetzt: Fenster, Heizung und Heizkörper erneuert, neue Eingangstür sowie Terrassenüberdachung. Schulen, Kitas, Einkaufsmöglichkeiten und Naherholung befinden sich in kurzer Distanz.
Weitere Details erhalten Sie im ausführlichen Exposé – wir freuen uns auf Ihre Anfrage!
- Bungalow in eingeschossiger Bauweise mit angenehmem Wohnen auf einer Ebene (Bj. 1972)
- Ca. 125 m² Wohnfläche zzgl. ca. 49 m² wohnlich ausgebauter Nutzfläche im Dachgeschoss
- Ca. 727 m² Grundstück mit schön angelegtem Garten
- Heller Wohn-/Essbereich mit Zugang zur überdachten Terrasse
- Küche mit Essecke und praktischem Zugang nach draußen
- 3 gut nutzbare Schlafzimmer im Erdgeschoss
- Tageslichtbad plus separates Gäste-WC
- Parkettboden in den Wohnbereichen
- Garten mit Teich, Saunahütte und viel Platz zum Entspannen
- Garage mit direktem Hauszugang
- 3 Schuppen mit großzügigen Abstellmöglichkeiten
- Umfangreiche Modernisierungen in wichtigen Bereichen bereits erfolgt
Weitere Ausstattungsmerkmale und Details finden Sie im vollständigen Exposé.
Wir freuen uns auf Ihre Anfrage !
Die Immobilie befindet sich in attraktiver Wohnlage von Wiesbaden-Naurod, einem naturnahen Stadtteil am Rand des Taunus. Die Umgebung ist geprägt von gewachsener Wohnbebauung, viel Grün und angenehmer Nachbarschaft. Gleichzeitig bestehen gute Verbindungen in Richtung Wiesbadener Innenstadt und ins Rhein-Main-Gebiet.
Wir freuen uns auf Ihre Kontaktaufnahme
Individuell. Diskret. Persönlich.
Sie interessieren sich für dieses Objekt?
Gerne senden wir Ihnen ein ausführliches Exposé mit weiteren Informationen zu.
Individuell. Diskret. Persönlich.