



























Dieses kernsanierte Reihenhaus in begehrter Lage von Bad Soden am Taunus bietet modernen Wohnkomfort auf drei Etagen. Baujahr 1965, umfassend modernisiert 2025.
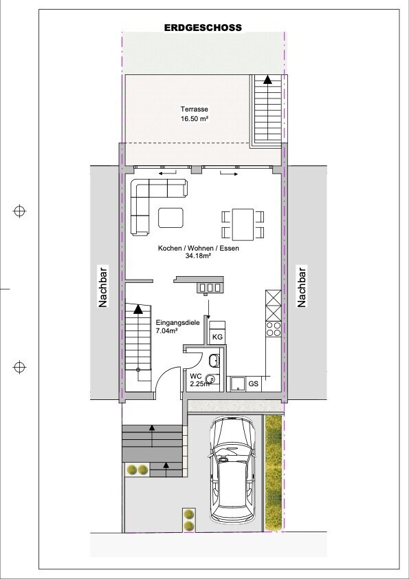
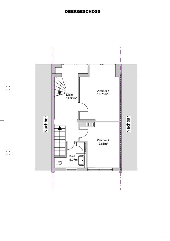
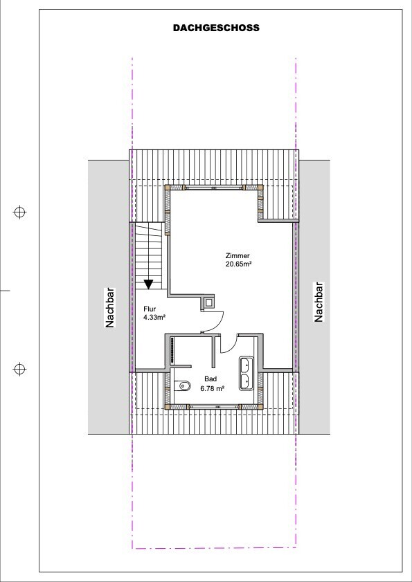
Auf ca. 128 m² Wohnfläche stehen 4 Zimmer zur Verfügung, darunter 3 Schlafzimmer. Zwei moderne Badezimmer sowie ein zusätzliches Gäste-WC sorgen für hohen Alltagskomfort.
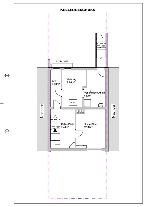
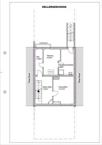
Das Haus ist voll unterkellert und bietet ca. 42 m² Nutzfläche. Das ca. 187 m² große Grundstück mit Terrasse lädt zum Entspannen und Essen im Freien ein.
Verfügbar ab 01.04.2026 – ideal für Paare oder Familien.
- Gäste-WC
- Terrasse
- Stellplatz im Freien
- Unterkellert
- Gaszentralheizung
- Fußbodenheizung
- elektrische Rollläden
- 3-fach Verglasung
- Außendämmung
- 2 Tageslichtbäder
- Glasfasernschluß
- LAN-Verkabelung
**Haftungsausschluss**
Wir weisen darauf hin, dass die von uns weitergegebenen Objektinformationen, Unterlagen, Pläne sowie sonstige Angaben ausschließlich auf Informationen beruhen, die uns vom Verkäufer zur Verfügung gestellt wurden. Eine Gewähr für die Vollständigkeit, Richtigkeit und Aktualität dieser Angaben wird von uns nicht übernommen.
Alle Immobilienangebote sind freibleibend und erfolgen vorbehaltlich Irrtümer sowie eines Zwischenverkaufs, einer Zwischenvermietung oder sonstiger Zwischenverwertung. Die im Exposé verwendeten Bilder können vom tatsächlichen Zustand bzw. Ergebnis abweichen.
Dieses Reihenhaus liegt in bevorzugter Wohnlage von Bad Soden am Taunus. Gepflegte Wohnstraßen, viel Grün und eine familienfreundliche Nachbarschaft schaffen ein ruhiges Wohnumfeld bei zugleich sehr guter Infrastruktur.
Einkaufsmöglichkeiten, Ärzte, Apotheken sowie Cafés und Restaurants sind schnell erreichbar. Kindergärten und Schulen befinden sich in der Nähe, ebenso laden Spazier- und Radwege in der Taunuslandschaft zu Freizeitaktivitäten ein.
Gute Verkehrsanbindung: ÖPNV-Anschluss in die Umgebung, Frankfurt am Main ist mit Auto sowie Bahn/Bus bequem erreichbar. Naturnah wohnen – nahe wichtiger Arbeits- und Wirtschaftsstandorte.
Wir freuen uns auf Ihre Kontaktaufnahme
Individuell. Diskret. Persönlich.
Sie interessieren sich für dieses Objekt?
Gerne senden wir Ihnen ein ausführliches Exposé mit weiteren Informationen zu.
Individuell. Diskret. Persönlich.